Platan Apartman - Palić
Entdecken Sie die Schönheit Serbiens mit günstigen Hotels in Belgrad ab 18€, Ferienwohnungen in Novi Sad ab 16€, Hostels in der Hauptstadt ab 16€ pro Nacht. Erleben Sie die atemberaubende Festung Petrovaradin, den majestätischen Dom des heiligen Sava und erkunden Sie den unberührten Nationalpark Tara. Für Winterurlauber bietet das Skigebiet perfekte Bedingungen, während Ada Ciganlija (Belgrader Meer) im Sommer zum Verweilen einlädt. Von Camping am Donauufer bis zu luxuriösen Villen in Zlatibor.
Platan Apartman
Palić Splitska aleja 12
Anzahl der Räume
2
WiFi
Parking
Wir reden
HU SR
9.6/10
Anzahl der Räume
2
WiFi
Parking
Wir reden
HU SR
9.6/10
Set within 38 km of Votive Church Szeged and 36 km of Szeged Train Station, Platan Apartman offers rooms with air conditioning and a private bathroom in Palić. Private parking is available on site at this recently renovated property. The apartment has family rooms.
All units comprise a seating area with a sofa, a dining area, and a fully equipped kitchen with various cooking facilities, including a fridge, a stovetop and kitchenware. With a private bathroom fitted with a shower and a hair dryer, units at the apartment complex also have free WiFi, while certain rooms also offer a terrace. At the apartment complex, units are equipped with bed linen and towels.
Guests can also relax in the garden.
Szeged Zoo is 36 km from the apartment, while New Synagogue is 38 km from the property.
The hotel day starts from hour 15:00 and ends at 11:00.
This property will not accommodate hen, stag or similar parties.
Managed by a private host
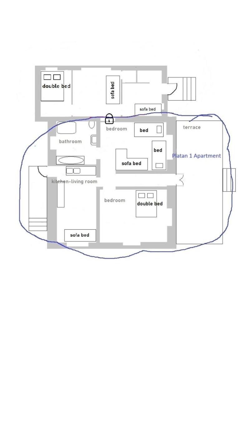
Two-Bedroom Apartment with Garden View. Boasting a private entrance, this air-conditioned apartment features 1 living room, 2 separate bedrooms and 1 bathroom with a bath and a shower. In the kitchen, guests will find a stovetop, a refrigerator, kitchenware and a microwave. The spacious apartment features a flat-screen TV with cable channels, a washing machine, a coffee machine, a seating area as well as garden views. The unit has 5 beds. ;
One-Bedroom Standard Apartment. Featuring a private entrance, this air-conditioned apartment consists of 1 living room, 1 separate bedroom and 1 bathroom with a shower and a hairdryer. The well-fitted kitchen features a stovetop, a refrigerator and kitchenware. The apartment has tiled floors, a seating area, a dining area, a wardrobe as well as garden views. The unit offers 3 beds.
Nichtraucherzimmer
Privatparkplatz
Personal befolgt alle Sicherheitsrichtlinien der örtlichen Behörden
Keine gemeinschaftlich genutzten Schreibwaren wie gedruckte Speisekarten, Magazine, Stifte und Papier
Unterkunft wird zwischen den Aufenthalten desinfiziert
Parkplatz inbegriffen
Garten
Internet
Heizung
Handdesinfektionsmittel in Unterkunft und Gemeinschaftsbereichen
Gäste können angeben, dass keine Reinigung der Unterkunft während des Aufenthaltes gewünscht ist
Parkplatz
Parken vor Ort
Nichtraucherunterkunft (Alle öffentlichen und privaten Bereiche sind Nichtraucherzonen)
Bargeldlose Zahlung möglich
Familienzimmer
Terrasse
Kontaktloser Check-in/Check-out
Unterkunft wird nach der Reinigung versiegelt
WLAN inklusive
Klimaanlage
WLAN
WLAN in allen Bereichen
Bettwäsche, Handtücher und Wäsche werden nach Richtlinien der örtlichen Behörden gewaschen
Raucherbereich
Verwendung von gegen das Coronavirus wirksamen Reinigungsmitteln
